REQUEST A TOUR If you would like to see this home without being there in person, select the "Virtual Tour" option and your agent will contact you to discuss available opportunities.
In-PersonVirtual Tour

Listed by Hsin-Chieh Chou • Giant Realty Inc.
$1,500,000
Est. payment /mo
3,316 SqFt
UPDATED:
Key Details
Property Type Multi-Family
Sub Type Multiple Dwellings / Structures
Listing Status Active
Purchase Type For Sale
Square Footage 3,316 sqft
Price per Sqft $452
MLS Listing ID ML82023903
Year Built 1913
Lot Size 4,965 Sqft
Property Sub-Type Multiple Dwellings / Structures
Property Description
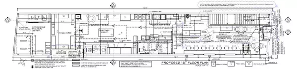
Great Opportunity for Contractor, Builder, Owner Occupied or Investment / A Resolution of the Planning Board of the City of Alameda Approving Design Review Application to Allow Construction of a New 3,316 Sq. Ft. Mixed-Use Two-Story Building at Total Lot of 4,965 Sq. Ft. / With One Retail Unit (1st Floor) and Two Residential Units (2nd Floor) / 1,571 Sq. Ft. (1st Floor) and 1,677 Sq. Ft. (2nd Floor) / Previous Use: Dimitras Sandwiches To Go / Zoning: C-C-T (Community Commercial and Theater Combining Zoning District) / Rare Property With Big Private Parking Lot at Park St. / Located in the Heart of Alamedas Shopping District / Excellent Access to I-880 and State Route 61 / Within One Mile to South Shore Center and Beach / One Block to Chochenyo Park / Unique Opportunity Offers Lots of Possibilities
Location
State CA
County Alameda
Area Alameda Map Area 2
Zoning C-C-T
Interior
Heating Other
Cooling Other
Exterior
Parking Features Off-Street Parking
Utilities Available Public Utilities
Roof Type Flat / Low Pitch,Shingle
Building
Story 1
Foundation Concrete Slab
Sewer Sewer - Public
Water Public
Level or Stories 1
Others
Tax ID 071-0206-007
Security Features Other
Horse Property No
Special Listing Condition Not Applicable
Read Less Info

© 2025 MLSListings Inc. All rights reserved.
GET MORE INFORMATION




